免費申請戶型規劃
提交您的信息專業家裝顧問1對1服務免費電話申請: 13159804569
我 們 更 注 重 您 對 生 活 的 態 度
We pay more attention to your attitude towards life
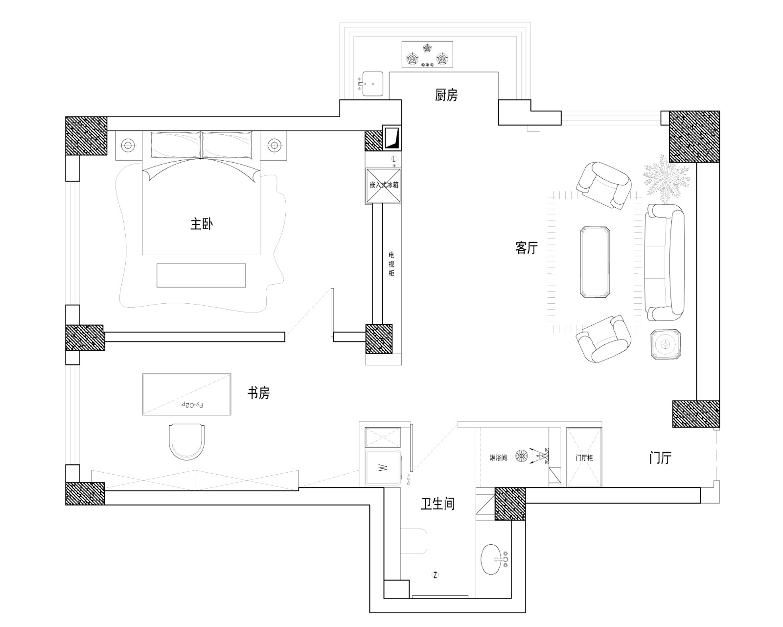
坐標:濱江花園
面積:67m2
風格:現代風格
﹀
﹀
﹀

SPACE
現代感滿滿的玄關

SPACE
時尚的起居空間
客廳是家的“臉面”,精致大氣的客廳不僅讓你的家有一種國際潮流范,更是讓我們在忙碌的生活之余,擁有一片舒適的空間。


SPACE
精致的廚藝空間
簡約廚房的裝修整體有一種十足的靜謐感。大理石的吧臺設計,搭配著LED線條燈,顯得非常的時尚。沒有多余的裝飾點綴,顯得小巧溫馨。


SPACE
舒適的休息空間
床頭背景墻選用線條簡單的設計,讓空間看起來簡潔一點。沒有過多的一些裝飾或是復雜的造型,一切都是從實用、簡潔的角度去思考,表現出現代富有朝氣的生活氣息。頂棚的設計均以簡潔的設計。

SPACE
宜家感的洗漱空間
作為整個房間的點睛之筆,洗漱空間是生活里每天都會用到的地方,本案設計師采用大膽的設計,懸空的洗手臺下方方便打掃,安裝在鏡子上的水龍頭更增加簡約之美,墻上的花朵設計更是增加此空間國際時尚感。


-END-
云空間裝飾(麗江路)
因為有你們的存在
世界才會變的更加美好
▼
--END--
公司地址:哈爾濱群力新區麗江路2812號
聯系電話:0451-55565363
(宏潤·翠湖天地門市)
云/領/生/活/ 品/質/空/間
云 - 空 - 間 - 裝 - 飾