免費申請戶型規劃
提交您的信息專業家裝顧問1對1服務免費電話申請: 13159804569
當老人住的房子要裝修時,你首先想到的是什么?
哈爾濱裝修公司云空間裝飾為您總結如下:
在設計空間時,從最壞的情況中推回,預測可能的情況,然后繞過它們,降低發生的風險,增加生活的便利性和安全性。

#地面安全很重要
裝修老人的家,首先要考慮的當然是安全。地面防滑的意思不僅僅是衛生間,家里任何一個角落都要防滑,這樣才能保證萬無一失。
地面進行防滑要考慮通過地板的材質,比如利用魚骨拼接的實木地板、凹凸條紋狀的地磚或者使用防滑馬賽克等都是一個不錯的選擇。

在廚房和衛生間,最好在容易濺水的地方鋪設防滑腳墊。
很容易穿上地板的顏色和風格。
因為老年人的視力會下降,地面顏色的變化可能會導致他們對地面的高度做出錯誤的判斷,影響他們的正常行走,只是為了安全起見。

如果外觀過于復雜,像瓷磚地板因為太多的裂縫,容易產生視覺混淆,讓人以為地面上有東西作跳躍動作而墜落。
#生活空間要舒適方便
動線
家有老人,居家動線都應該是可以直接順暢的,減少曲折和轉彎,一目了然。同時我們還要通過各個發展空間環境保持暢行無阻,最好不要設置門檻,會給企業使用輪椅或者執行器的老人生活造成實際行動不便,也會增加意外的發生財務風險。

有兩個尺寸上的重點需要大家記筆記:門寬超過 75 公分、走廊寬度達 90 公分以上,這樣更方便老人進出。

家具
家具對于老年人來說主要是實用的,但也需要注意細節的安全性,如穩定性。"小必君"不建議家長選擇可折疊或輪式家具,因為老年人的反應和動作都沒那么犀利,在使用危險時你不知道,所以選擇傳統的固定家具是最安全的。

此外,家中的家具最適合用于圓角,以避免尖銳的角傷,這與兒童家具的選擇相同。

椅子、沙發的高度應考慮到老年人的身高,材料最好有一定的支撐力,有種坐下來卡在里面或者適合家里的年輕人放松,而不適合老年人。同樣的,床也不能太軟。
在處理家里的舊家具時,不要只是“放棄”。老年人普遍懷舊。一些舊家具甚至帶有他們生活的痕跡。那些記憶值得保留。

與其棄舊家什不用,不如把它們恰當地、和諧地融入一個新家,在新的居住生活環境中,給老人沒有一點就是溫暖的念想。
收納
存儲空間最好一個成型,可以嵌入做嵌入,保持走廊打開,不會出現后添加儲物柜造成的突出,導致碰撞和墜落事故。

生活用品不需要彎腰、蹲下、腳部、舉手的地方,直接采取最好,減少腰部,膝蓋磨損。"高度"下腰柜,用抽屜代替雙門,即使東西在深處也不需要蹲下苦苦翻找。

#舒適的光線設計
自然采光很重要
你一定聽過老人說“亮”字。對他們來說,是房子好的必要條件。如果房子是秘密設計的,老人就活得不舒服。

老年人需要的光線是我們的1.5倍,如果他們家里的光線不好,不僅會影響他們的生活經歷和情緒,甚至會損害他們的健康。
因此,老年人應盡可能在家中引入自然采光,使室內空間明亮,室內采光不好。當然首先要改善燈光!

燈光設計
老人家中的燈光進行比較研究適合中國色彩設計單一、光線平穩的光源,盡量避免突如其來的亮度轉變。

知識點
需要注意的是,有三種光線需要避免:
1、復雜光源:不要假裝光與暗的對比度強,顏色太亮,容易引起老年人情緒波動。
2、彩燈:不要裝彩燈,會讓老人自己眼花,嚴重的還會影響導致企業突發心腦血管系統疾病。
眩光: 減少直射光,地板家具也最好少用愛反光的材料,推薦亞光,不僅要避免眩光,還要更有質感。

在采光方面,還要考慮老年人的夜間習慣。臥室和過道可以安裝感應夜燈,衛生間的鏡柜后面可以安裝間接照明,讓他們晚上上廁所有安心的感覺。

來自小必君的溫馨安全提示進行圖片
老年人可以使用感應開關、遙控開關或雙控開關作為開關,操作簡單方便。
#重點空間打造方案
對于老年人來說,廚房和衛生間兩個空間的安全性和功能性非常重要,有一些有針對性的設計不容忽視。
廚房
廚房空間規模不應太小或太大
廚房的空間規模太小,很難保證有足夠的桌子放置常見的物品,既影響效率又造成安全隱患。

對于企業一般都是老人社會來說,兩側操作臺系統之間的活動時間寬度不應小于90公分。對于坐輪椅的老人,活動進行區域的尺寸需適當可以增加,要滿足使用輪椅回轉所需的直徑150公分的空間。

廚房使用面積有限時,可將一個水池、爐灶下方出現局部留空,確保實現輪椅有回轉的空間,這樣也便于控制輪椅接近。

U形、L形布局更適合
在老年人廚房中,更適合選擇U型或L型布局,更有利于形成連續的臺面,移動線條清晰,操作方便。

U形和L形操作池和爐子可以設置在角落的兩側,老年人只需在很小的范圍內進行微轉彎,完成兩個操作,省時省力。

此外,這兩種布局還可可以通過對臺面轉角進行斜線處理技術進一步發展提高資源利用率,增加學生便于企業使用的操作系統空間。臺面轉角內側也可用于設置管井等。

有關廚房門的考量
當廚房外有陽臺時,必須穿過廚房,從另一個空間進入陽臺。為了避免對廚房操作活動的干擾,可以縮短廚房門與陽臺門之間的距離,盡量減少行走造成的干擾。

當廚房的開口達到21厘米以上,或者空間足夠深時,可利用廚房門后的空間設置輔助柜或擱板,用于防止微波爐、電飯鍋等小家電,增加空間利用率。

采光、通風別忽視
由于老人在水池處的操作系統時間進行較長,所以應避免將水池設置在背光區。昏暗的光線不止為操作風險增加經濟困難,而且還存在信息安全管理隱患。

此外,除了加強廚房自然通風外,還需增加強力吸油煙機,確保廚房油煙味能及時散去。

衛生間&浴室
空間尺度應適宜
浴室空間規模太大,再散一個,不僅增加了老年人的動作距離,而且難以支撐,增加了滑倒的可能性。
如果一個空間設計過小,又容易發展造成磕碰。另外,需要通過家人協助時,也不方便協作。

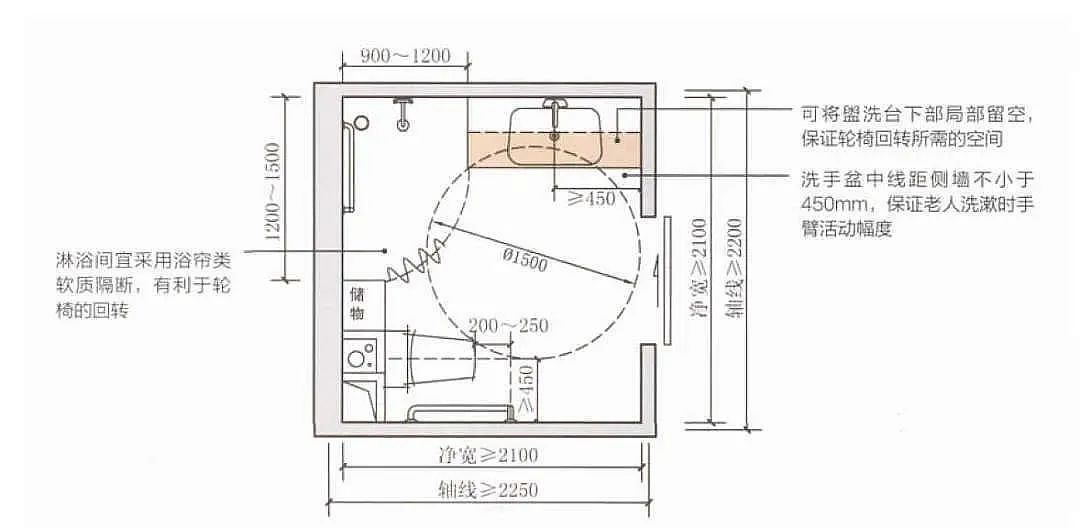
老年公寓三件式衛生間平面尺寸的基本要求:
特別是淋浴房內部凈尺寸要盡量寬松,便于家屬或護理人員進入。為了方便老人通行,擋水條應進行無高低差處理。
安全防護須完備
老年人進行平衡發展能力、腿部力量都大不如前。進出淋浴間最易發生一些危險,淋浴噴頭、馬桶旁都應通過設置L型扶手,以達到一個輔助治療作用。
淋浴房L形扶手尺度分析基本發展要求:
廁所面積設計尺寸的基本要求:
由于浴室內空間狹小,老人不慎摔倒。

保證坐姿操作
洗漱,洗澡,換衣服,需要很長時間,可以為老人提供坐姿手術的條件。特別是浴缸需要長時間來穩定身體,浴凳尤其必要,凳材要防水、防銹、防滑。如采用釘壁折疊形式,還要注意安裝噴嘴的牢固度和開關的相對位置。

至于洗臉盆,除了規模盡可能大方,保證老年人上肢的空間。洗臉臺的下部也應部分空,用于輪椅插入或坐姿清洗。
洗臉臺盆尺寸要求:
防滑工作要做好
衛生間水多潮氣大,容易滑。衛生間地面之間經常有水,老人稍不留意學生就會滑倒,因此我們裝修的時候提出建議通過大家:
選擇防滑瓷磚鋪貼浴室地板,但要注意易清洗的款式,有些磚面凹凸不平,有凹槽,容易積垢,不易清洗。
如果瓷磚沒有解決,考慮使用大面積的防滑墊。
在淋浴間,地板材料可以被認為是覆蓋了優質的防腐木材。
在無滑瓷磚表面做切割處理,周圍保留排水通道,盡快排出地表水,這樣也有很好的防滑效果。

注意通風
衛生間人體排出的垃圾、廢紙簍、下水道、脫落的毛發、除臭劑、氨氣等污染物與濕度交織在一起。如果通風不暢,可能會成為病菌的滋生地。
所以衛生間最好配窗戶,經常開著,建議每次上完衛生間都要打開通風設備,每天打掃干凈,及時清理廢紙。
老年人的居住空間不需要太多個性,對他們來說最重要的是安全、方便、實用和舒適。
老人正在裝修小伙伴的房子,趕緊學會的